


Listing Courtesy of:
STELLAR / Exit Bayshore Realty - Contact: 813-839-6869
STELLAR / Exit Bayshore Realty - Contact: 813-839-6869 567 Luzon Avenue Tampa, FL 33606
Active (718 Days)
$3,639,000 (USD)
Description
MLS #:
T3505834
T3505834
Taxes
$3,774(2023)
$3,774(2023)
Lot Size
0.26 acres
0.26 acres
Type
Single-Family Home
Single-Family Home
Year Built
2025
2025
Style
Traditional
Traditional
County
Hillsborough County
Hillsborough County
Listed By
Robert Wilson, Exit Bayshore Realty, Contact: 813-839-6869
Source
STELLAR
Last checked Feb 13 2026 at 5:50 AM GMT+0000
STELLAR
Last checked Feb 13 2026 at 5:50 AM GMT+0000
Bathroom Details
- Full Bathrooms: 4
- Half Bathroom: 1
Interior Features
- Kitchen/Family Room Combo
- Breakfast Room Separate
- Media Room
- Loft
- Bonus Room
- Den/Library/Office
- Family Room
- Living Room/Dining Room Combo
- Appliances: Dishwasher
- Appliances: Refrigerator
- Appliances: Washer
- Open Floorplan
- Appliances: Disposal
- Appliances: Range Hood
- Appliances: Microwave
- Appliances: Range
- Appliances: Dryer
- Appliances: Built-In Oven
- Appliances: Convection Oven
- Eat-In Kitchen
- Interior In-Law Suite W/No Private Entry
- Primarybedroom Upstairs
Subdivision
- Byars Thompson Add Davis
Lot Information
- Sidewalk
- City Limits
- Oversized Lot
- Paved
Property Features
- Foundation: Slab
- Foundation: Stem Wall
Heating and Cooling
- Central
- Zoned
- Central Air
Pool Information
- In Ground
- Lighting
Flooring
- Wood
Exterior Features
- Block
- Frame
- Roof: Shingle
Utility Information
- Utilities: Cable Available, Fiber Optics, Water Available, Water Connected, Bb/Hs Internet Available, Electricity Connected
- Sewer: Public Sewer
School Information
- Elementary School: Gorrie-Hb
- Middle School: Wilson-Hb
- High School: Plant-Hb
Garage
- 34X25
Parking
- Golf Cart Garage
- Golf Cart Parking
- Oversized
- Parking Pad
- On Street
- Garage
Living Area
- 5,083 sqft
Listing Price History
Date
Event
Price
% Change
$ (+/-)
Dec 20, 2025
Price Changed
$3,639,000
0%
$10,000
Aug 29, 2025
Price Changed
$3,629,000
-4%
-$170,000
Jan 28, 2025
Price Changed
$3,799,000
6%
$200,000
May 14, 2024
Price Changed
$3,599,000
3%
$100,000
Mar 02, 2024
Price Changed
$3,499,000
3%
$100,000
Feb 26, 2024
Price Changed
$3,399,000
3%
$100,000
Feb 20, 2024
Listed
$3,299,000
-
-
Additional Information: Exit Bayshore Realty | 813-839-6869
Location
Disclaimer: Listings Courtesy of “My Florida Regional MLS DBA Stellar MLS © 2026. IDX information is provided exclusively for consumers personal, non-commercial use and may not be used for any other purpose other than to identify properties consumers may be interested in purchasing. All information provided is deemed reliable but is not guaranteed and should be independently verified. Last Updated: 2/12/26 21:50
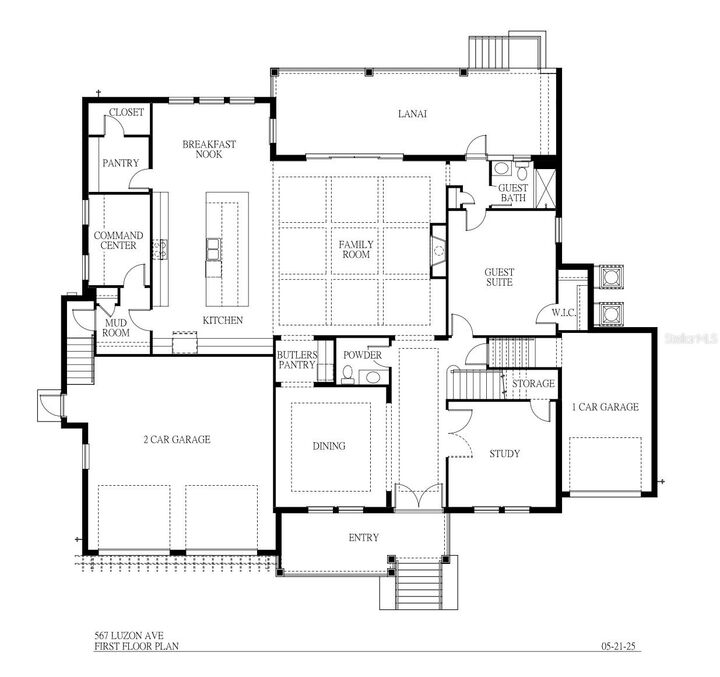
Mobley Homes Custom is crafting a masterpiece on an oversized 90x126 lot in the Gorrie, Wilson, Plant School District. This South Tampa gem features 10’ ceilings, 8’ doors, and hardwood floors throughout (except baths), with premium finishes and a double AC system.
The open island kitchen is a showstopper, equipped with a 48 Classic Side-by-Side Refrigerator/Freezer, dual 24 Drawer Microwaves, and a 24 Paneled Dishwasher. It features Napa micro-shaker cabinets in white oak (lower cabinets, fridge wall, uppers) and white (upper cabinets next to hood, island), quartz countertops in Abaco White, an apron sink, pot filler, and bar faucet in the Butler’s Pantry. Custom lighting and a breakfast nook elevate the space, complemented by a walk-in pantry.
The owner’s retreat upstairs offers a spacious bedroom, expansive his-and-her walk-in closets, and a spa-inspired bath with Napa micro-shaker cabinets, split vanities, a grand shower, four sconce lights, and marble mosaic floors. Secondary bedrooms, loft, study, and den feature hardwood floors and 5” crown molding. The foyer includes bead detailing and Kwikset Halifax matte black door hardware.
Downstairs, a covered lanai with a fan (65) connects to a pool bath and guest suite, plus a study and powder room with a standalone vanity, 12”x24” flooring, and a 30”x42” frameless mirror. Upstairs, four bedrooms (five total), a bonus room, balcony, three suites, and a laundry room with 12.5” wood-look hex flooring, Napa cabinets, and a quartz countertop (Abaco White) complete the layout. The laundry features a stackable 5.0 cu. ft. Smart Front Load Washer and 7.8 cu. ft. Smart Front Load Electric Dryer, with a 4”x12” brick-pattern backsplash.
Exterior highlights include SW 7005 Pure White body/trim, SW 7048 Urbane Bronze garage, and a Raven-stained front door. Pavers in a Herringbone 90 pattern (Tremron/Granite, Grey) adorn the driveway, lanai, and porch, with gas coach lights enhancing curb appeal. The outdoor kitchen boasts a Tradewind 38” hood, 32” Artisan Grill, and Zephyr 24” Beverage Cooler.
Baths feature Brizo plumbing fixtures, Napa or Mantra/Snow Shaker vanities, and Abaco White quartz countertops. Flooring includes 2”x2”, 9” hex, 12”x24” (staggered or horizontal), and 3” hexagon tiles, with shower walls in 2”x10” herringbone or 3”x12” vertical stacked patterns. The fireplace and dining room draw from inspiration photos, with custom trim and lighting.
Included upgrades: pool/spa, outdoor kitchen, built-in closets, and a mudroom with quartz counters and cabinet hardware. Interior paint features Extra White (doors, trim) and Pure White (walls, ceilings). Call for the updated look book and schedule a showing—this Davis Islands stunner is not to be missed!